Gewerbegebiete

Die hier veröffentlichten Dateien dienen nur als Vorabinformation.

Informationen zum Erwerb erhalten Sie bei der Stadtverwaltung Rosenfeld, Finanzverwaltung, Frau Isabell Hinger,
Tel. +49 7428 9392-19, E-Mail: i.hinger@rosenfeld.de.

Informationen zu den Bauvorschriften erhalten Sie bei der Stadtverwaltung Rosenfeld, Bauverwaltung, Frau Dagmar Müller,
Tel. +49 7428 9392-17, E-Mail: d.mueller@rosenfeld.de.

Rosenfeld, Dornbrunnen I

Gewerbegebiet in der Kernstadt Rosenfeld.

Lageplan (1,1 MB)
Legende (69 KB)
Satzung (251 KB)
Textteil (425 KB)

Rosenfeld, Dornbrunnen I, 1. Änderung

Gewerbegebiet in der Kernstadt Rosenfeld.

Lageplan (375 KB)
Legende (24 KB)
Satzung (352 KB)

Rosenfeld, Dornbrunnen I, 2. Änderung

Gewerbegebiet in der Kernstadt Rosenfeld.

Lageplan (618 KB)
Legende (298 KB)
Satzung (184 KB)

Rosenfeld, Dornbrunnen I, 3. Änderung

Gewerbegebiet in der Kernstadt Rosenfeld.

Lageplan (1,2 MB)
Legende (499 KB)
Bauvorschriften (1,1 MB)
Satzung (612 KB)
Textteil (2,9 MB)

Rosenfeld, Dornbrunnen I, 4. Änderung

Gewerbegebiet in der Kernstadt Rosenfeld.

Lageplan (1,8 MB)
Legende (163 KB)
Satzung (295 KB)
Textteil (399 KB)

Rosenfeld, Dornbrunnen I, 5. Änderung

Gewerbegebiet in der Kernstadt Rosenfeld.

Lageplan (5,4 MB)
Legende (931 KB)
Bauvorschriften (1,2 MB)
GOP (4,6 MB)
Satzung (680 KB)
Textteil (4,2 MB)

Rosenfeld, Dornbrunnen I, 6. Änderung

Gewerbegebiet in der Kernstadt Rosenfeld.

Bebauungsplan (2,5 MB)
Legende (613 KB)
Begründung (3,2 MB)
Satzung (837 KB)
Textfestsetzung (779 KB)

Rosenfeld, Dornbrunnen II

Gewerbegebiet in der Kernstadt Rosenfeld.

Lageplan (1,3 MB)
Legende (242 KB)
Satzung (415 KB)
Textteil (1 MB)

Rosenfeld, Dornbrunnen II, 1. Änderung

Gewerbegebiet in der Kernstadt Rosenfeld.

Lageplan (389 KB)
Satzung (224 KB)

Rosenfeld, Dornbrunnen III

Gewerbegebiet in der Kernstadt Rosenfeld.

Lageplan (1,5 MB)
Legende (299 KB)
GOP (2,1 MB)
Bauvorschriften (1,6 MB)
Satzung (966 KB)
Textteil (1,5 MB)

Rosenfeld, Dornbrunnen IV

Gewerbegebiet in der Kernstadt Rosenfeld.

Lageplan (1,4 MB)
Legende (242 KB)
GOP (1,3 MB)
Bauvorschriften (508 KB)
Satzung (436 KB)
Textteil (2,7 MB)

Rosenfeld, Dornbrunnen IV, 1. Änderung

Gewerbegebiet in der Kernstadt Rosenfeld.

Lageplan (4,2 MB)
Legende (544 KB)
Bauvorschriften (616 KB)
Satzung (930 KB)
Textteil (3,5 MB)

Rosenfeld, Ganswasen

Gewerbegebiet in der Kernstadt Rosenfeld.

Lageplan (280 KB)
Legende (66 KB)
Satzung (164 KB)
Textteil (239 KB)

Rosenfeld, Rosenfeld-West

Baugebiet in der Kernstadt Rosenfeld

Lageplan (3,4 MB)
Legende (370 KB)
Bauvorschrift (1,9 MB)
Begründung (4,3 MB)
GOP (1,2 MB)
Satzung (448 KB)
Textteil (1,9 MB)

Rosenfeld, Rosenfeld-West, 1. Änderung

Gewerbegebiet in der Kernstadt Rosenfeld.

Lageplan (2,2 MB)
Legende (157 KB)
GOP (3,7 MB)
Satzung (891 KB)
Textteil (2,7 MB)

Rosenfeld, Peterleshag

Mischgebiet in der Kernstadt Rosenfeld

Lageplan (1,6 MB)
Legende (94 KB)
Bauvorschriften (506 KB)
Satzung (212 KB)
Textteil (393 KB)

Rosenfeld, Rosenfelder Tal

Mischgebiet in der Kernstadt Rosenfeld.

Lageplan (1,4 MB)
Legende (110 KB)
Satzung (478 KB)

Rosenfeld, Rosenfelder Tal, 1. Änderung

Mischgebiet in der Kernstadt Rosenfeld.

Lageplan (1,3 MB)
Abgrenzungsplan (288 KB)
Bauvorschriften (323 KB)
Planungsrecht (587 KB)
Satzungen (652 KB)

Rosenfeld, Rosenfelder Tal, 1. Erweiterung

Gewerbegebiet in der Kernstadt Rosenfeld.

Lageplan (4 MB)
Legende (491 KB)
Bauvorschriften (4,1 MB)
GOP (4,4 MB)
Satzung (2,4 MB)
Textteil (3,3 MB)

Rosenfeld, Schönbühl, 3. Änderung

Gewerbegebiet in der Kernstadt Rosenfeld.

Abgrenzungsplan (281 KB)
Planzeichnung (3,6 MB)
Planungsrecht (369 KB)
Bauordnungsrecht (147 KB)
Begründungen (3 MB)
Satzung BBP (67 KB)
Satzung ÖBV (50 KB)

Rosenfeld, Westliche Neuwiesen

Gewerbegebiet in der Kernstadt Rosenfeld.

Lageplan (890 KB)
Legende (45 KB)
Bauvorschriften (404 KB)
Satzung (220 KB)
Textteil (212 KB)

Rosenfeld, Westliche Neuwiesen, 1. Änderung

Gewerbegebiet in der Kernstadt Rosenfeld.

Lageplan (516 KB)
Legende (122 KB)
Satzung (292 KB)

Rosenfeld, Westliche Neuwiesen, 2. Änderung

Gewerbegebiet in der Kernstadt Rosenfeld.

Lageplan (561 KB)
Legende (119 KB)
Satzung (394 KB)

Bickelsberg, Breite I

Gewerbegebiet im Stadtteil Bickelsberg

Lageplan (1,1 MB)
Legende (564 KB)
Satzung (1,1 MB)

Bickelsberg, Breite I, 6. Änderung und Erweiterung

Gewerbegebiet im Stadtteil Bickelsberg

Lageplan (1,2 MB)
Legende (76 KB)
GOP (1,2 MB)
Satzung (537 KB)

Bickelsberg, Stützengarten

Gewerbegebiet im Stadtteil Bickelsberg.

Lageplan (872 KB)
Legende (150 KB)
GOP (917 KB)
Bauvorschriften (362 KB)
Satzung (274 KB)
Textteil (881 KB)

Bickelsberg, Stützengarten, 1. Erweiterung

Gewerbegebiet im Stadtteil Bickelsberg.

Lageplan (686 KB)
Legende (302 KB)
Bauvorschriften (1,3 MB)
Begründung (6,3 MB)
Umweltbericht (13,2 MB)
Textfestsetzung (3,7 MB)
Satzung (1 MB)

Brittheim, Osterlangen

Mischgebiet im Stadtteil Brittheim

Lageplan (773 KB)
Legende (374 KB)
Satzung (1,3 MB)
Textteil (555 KB)

Brittheim, Osterlangen 1. Erweiterung

Gewerbegebiet im Stadtteil Brittheim

Planzeichnung (540 KB)
Begründung (878 KB)
HPA (1,6 MB)
Umweltbericht (1,5 MB)
Satzung BBP (58 KB)
Satzung ÖBV (70 KB)

Heiligenzimmern, Jakobshof

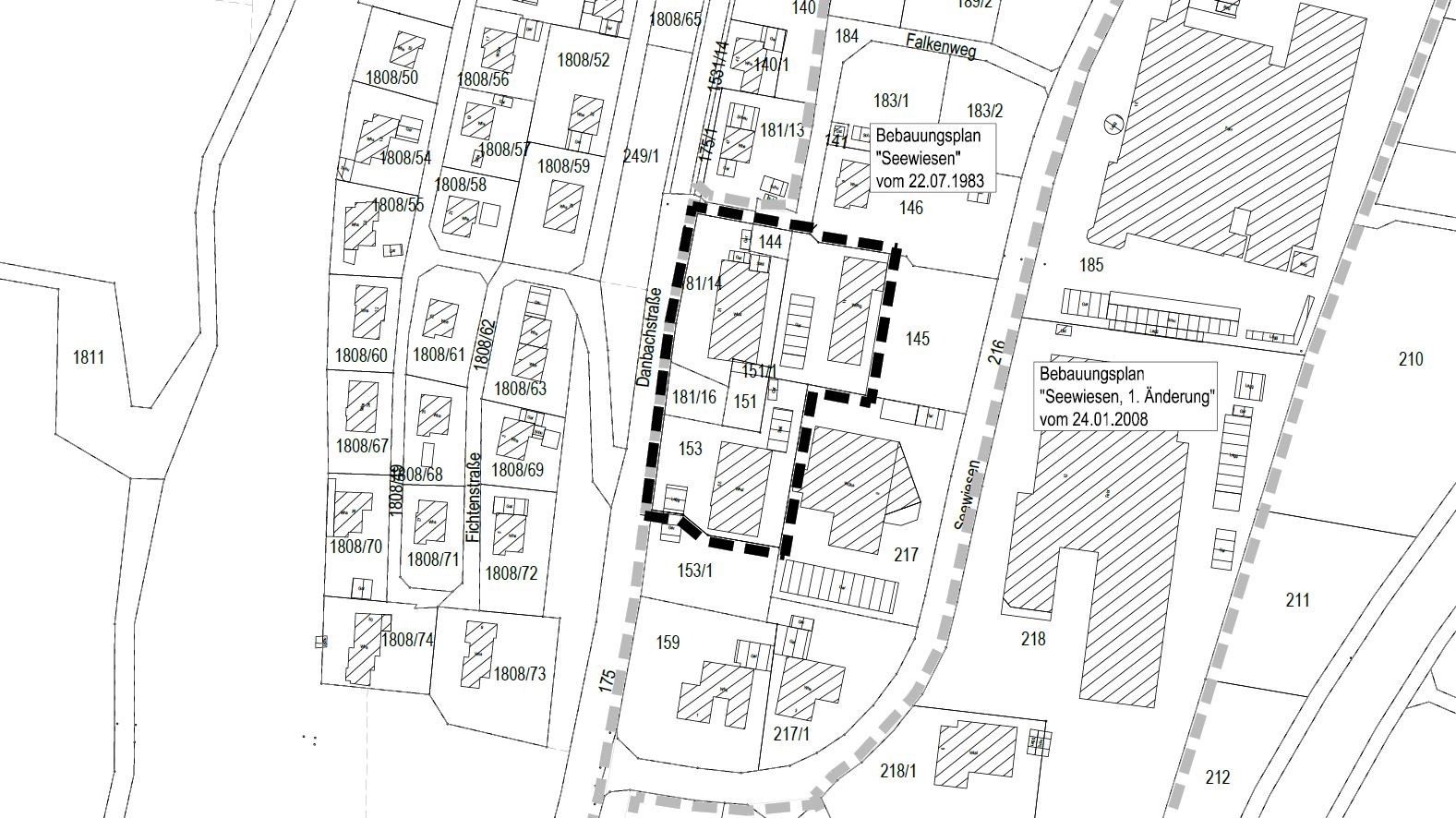
Heiligenzimmern, Seewiesen

Gewerbegebiet im Stadtteil Heiligenzimmern.

Lageplan (422 KB)
Legende (385 KB)
Bauvorschriften (1,3 MB)
Satzung (865 KB)
Textteil (537 KB)

Heiligenzimmern, Seewiesen, 1. Änderung

Gewerbegebiet im Stadtteil Heiligenzimmern.

Lageplan (1,4 MB)
Legende (143 KB)
Bauvorschriften (376 KB)
Satzung (349 KB)
Textteil (987 KB)

Heiligenzimmern, Seewiesen, 2. Änderung

Mischgebiet im Stadtteil Heiligenzimmern

Lageplan (2 MB)
Legende (1020 KB)
Begründung (9,1 MB)
Textfestsetzung (6,7 MB)
Bauvorschriften (1,4 MB)
Satzung (1,9 MB)
Umweltbericht (19,2 MB)

Leidringen, Brühl

Gewerbegebiet im Stadtteil Leidringen.

Lageplan (632 KB)
Legende (83 KB)
Satzung (209 KB)

Leidringen, Brühl, 1. Änderung

Gewerbegebiet im Stadtteil Leidringen

Lageplan (650 KB)
Legende (107 KB)
Satzung (209 KB)

Leidringen, Brühl, 2. Änderung

Gewerbegebiet im Stadtteil Leidringen

Lageplan (741 KB)
Legende (138 KB)
Bauvorschriften (428 KB)
Satzung (409 KB)
Textteil (222 KB)

Leidringen, Hofstetten II, 4. Änderung

Gewerbegebiet in der Kernstadt Rosenfeld.

Lageplan (757 KB)
Legende (350 KB)
Satzung (388 KB)
Textteil (578 KB)

Leidringen, Hofstetten II, 5. Änderung

Gewerbegebiet im Stadtteil Leidringen.

Bebauungsplan (2 MB)
Legende (1,7 MB)
Bauvorschriften (817 KB)
Begründung (3,6 MB)
GOP (1,4 MB)
Umweltbericht (18,1 MB)
Satzung (617 KB)
Textfestsetzung (2,5 MB)